apartment

2020 — Linköping

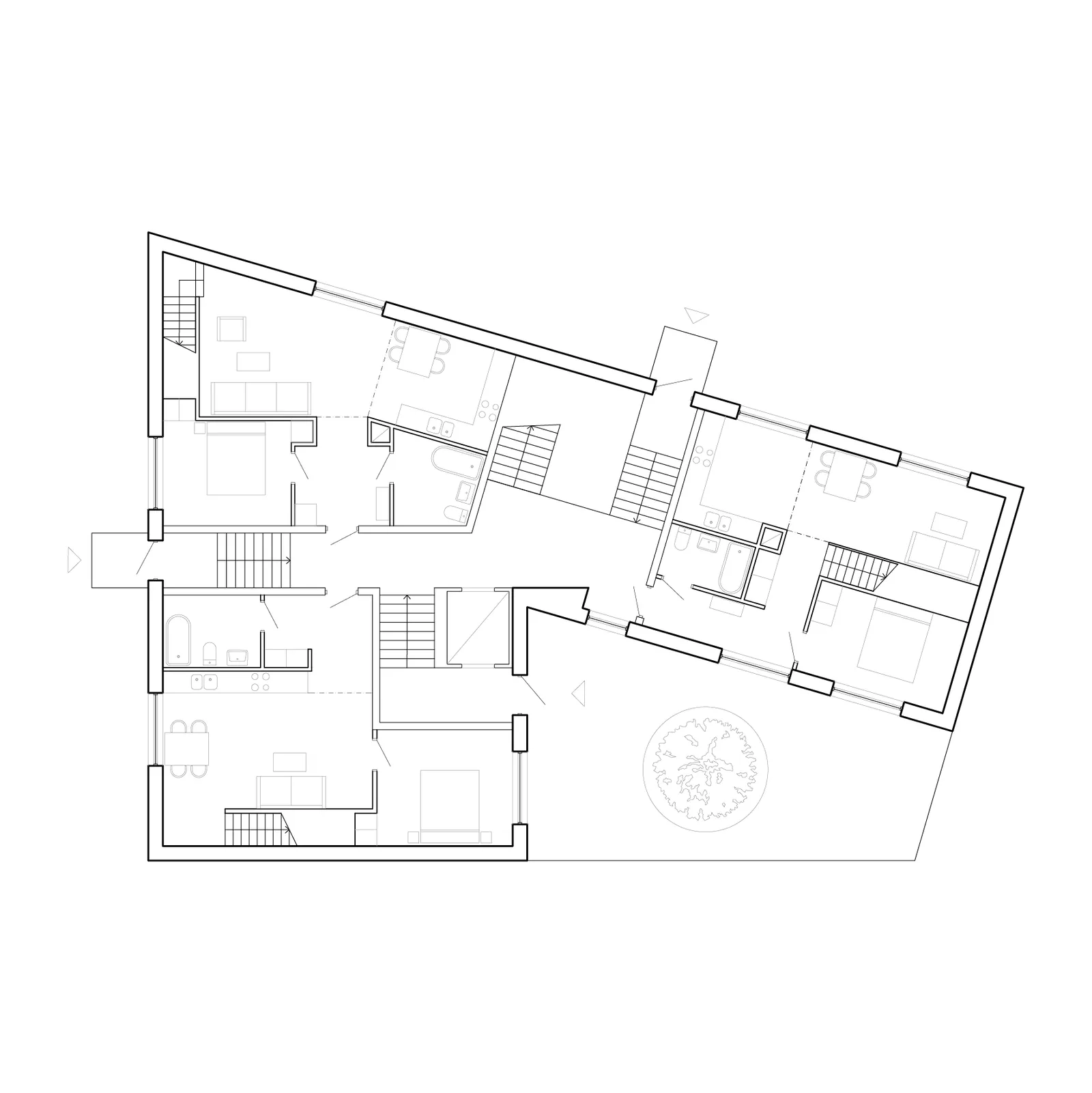
This building contains seven apartments around a common shared space in the center. The unusual form of the plot creates complex interior spaces with vertical and horizontal connections. Light shafts penetrate the building mass and give each space unique properties.

apartment image 1 apartment image 2 apartment image 3 apartment image 4 apartment image 5 apartment image 6 apartment image 7 apartment image 8 apartment image 9 apartment image 10 apartment image 11